About

Bouwko Landstra en Alko de Vries werken samen sinds 1997 en staan vanaf 2002 bekend als Landstra & de Vries.

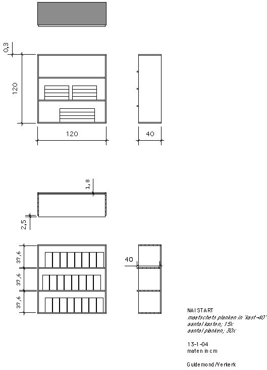
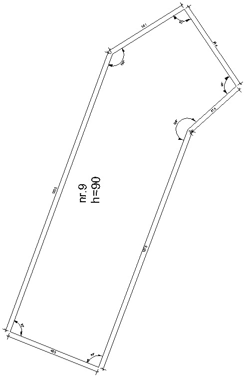
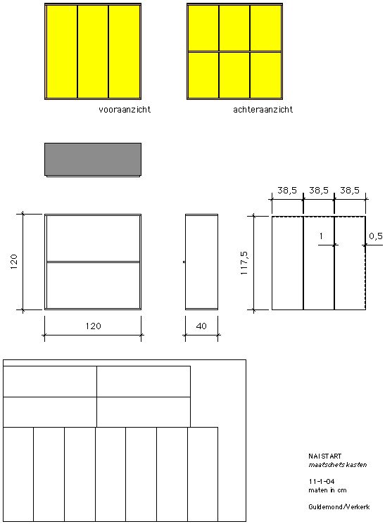
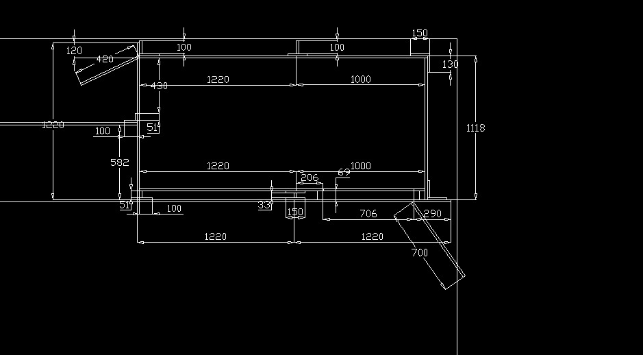
Voor het voorbereiden, bouwen en inrichten van tentoonstellingen en het maken van kunstwerken, prototypes, meubels, keukens, kasten, interieurs, maquettes, proefmodellen, displays, sokkels en nog veel meer.

Website info:

- technische bouw en support: Hans Jansen http://www.greatbustards.com/

- nog niet alle projecten staan op deze website, hopelijk kunt u ze elders vinden.

random image